Réaménagement d'un Appartement | Barcelone (Espagne)
Maîtrise d'Ouvrage Privée | 110 m²
Ce projet se situe à Barcelone, au cœur de la vieille ville entre la Rambla et le MACBA "Museu d'Art Contemporani de Barcelona" (projet de l’architecte américain MEYER).
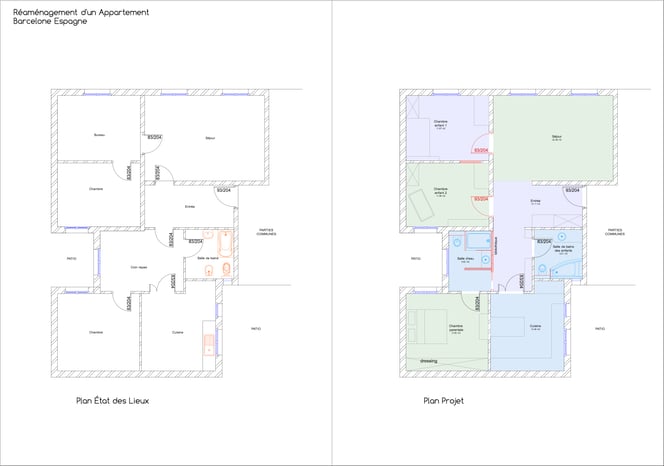
L’appartement se trouve au dernier niveau d’un immeuble datant du XIXe siècle. Il avait été précédemment rénové mais les nouveaux propriétaires ont souhaité un réaménagement complet intégrant des matériaux qualitatifs et l’aménagement d’un espace parental. Le chantier a duré 4 mois : réfection complète des sols avec pose en chevron d’un parquet en chêne pour unifier les espaces, démolition du faux plafond du séjour qui cachait la structure en bois, création d’un accès direct à la chambre enfant depuis l’entrée, réfection complète de la salle de bain avec intégration d’une buanderie et création d’une salle d’eau en relation avec la chambre des parents : carreaux métro toute hauteur.
L’appartement, très lumineux, est entièrement blanc. Des rangements réalisés sur mesure (optimisation de l’espace) et les sols des pièces d’eau apportent des touches ponctuelles de couleur !
